ST Moritz Phạm Văn Đồng nổi bật với các tiện ích đẳng cấp, hoàn hảo cho một cuộc sống hiện đại và tiện nghi tại TP.HCM.
Dự án không chỉ có sảnh lobby sang trọng và thang máy tốc độ cao, mà còn có hồ bơi trên sân thượng, phòng tập gym và quán cà phê.
Dự án ST Moritz bao gồm 1 Block với tổng số 205 căn hộ, bao gồm các loại như sau:
– Căn hộ 3 phòng ngủ, shophouse, căn hộ 2 phòng ngủ, duplex và officetel:
+ Căn hộ sở hữu vĩnh viễn: 106 căn
+ Căn hộ Officetel: 44 căn
+ Căn hộ ở, thuê trong 50 năm: 55 căn
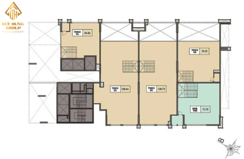
Mặt Bằng Shophouse Tầng Trệt + Lửng

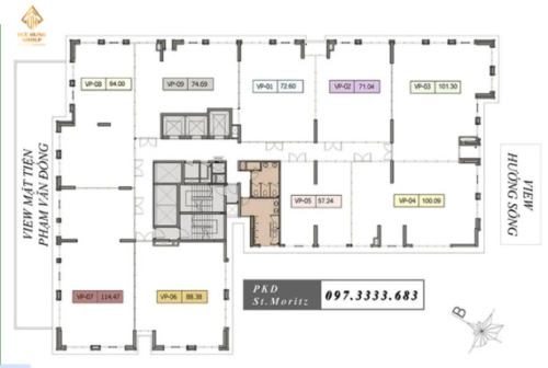
Mặt Bằng Khu Văn Phòng Tầng 2 – 8
Mặt Bằng Khu Căn Hộ Tầng 9 – 17
Mặt Bằng Khu Penthouse Tầng 18
Mặt Bằng Tiện Ích Tầng 19
ST Moritz căn hộ 2 phòng ngủ
Mặt bằng căn 2PN ST Moritz
– Căn hộ 01: 2PN – 2WC, có diện tích thông thủy: 70.76m2 và diện tích tim tường: 75.11m2
– Căn hộ 02: 2PN – 2WC, có diện tích thông thủy: 74.85m2 và diện tích tim tường: 78.83m2
– Căn hộ 03: 2PN – 2WC, có diện tích thông thủy: 73.48m2 và diện tích tim tường: 77.25m2
– Căn hộ 05: 2PN – 2WC, có diện tích thông thủy: 66.85m2 và diện tích tim tường: 70.63m2
– Căn hộ 06: 2PN – 2WC, có diện tích thông thủy: 66.28m2 và diện tích tim tường: 70.04m2
– Căn hộ 10: 2PN – 2WC, có diện tích thông thủy: 66.61m2 và diện tích tim tường: 69.48m2
ST Moritz căn hộ 3 phòng ngủ
Mặt bằng căn 3PN ST Moritz
– Căn hộ 08: 3PN – 2WC, có diện tích thông thủy: 86.43m2 và diện tích tim tường: 90.84m2
ST Moritz căn hộ Penthouse
Mặt bằng căn 3PN Penthouse ST Moritz
– Căn hộ 08: 3PN – 2WC, có diện tích thông thủy: 108.23m2 và diện tích tim tường: 113.19m2
– Căn hộ SK-01: 3PN – 2WC, có diện tích thông thủy: 108.23m2 và diện tích tim tường: 113.19m2
– Căn hộ SK-02: 3PN – 2WC, có diện tích thông thủy: 119.12m2 và diện tích tim tường: 124.85m2









