MẶT BẰNG DỰ ÁN ST MORITZ
Dự án ST Moritz, tọa lạc tại 1014 Phạm Văn Đồng, Thủ Đức, TP.HCM, là tổ hợp căn hộ và văn phòng cao cấp do Đất Xanh đầu tư. Với vị trí vàng, ST Moritz sở hữu hai mặt tiền sông, tầm nhìn hướng sông Sài Gòn và Landmark 81, mang lại không gian sống thoáng đãng và sang trọng.
Mặt bằng tầng hầm
Mặt bằng tầng hầm 1 – ST Moritz
Mặt bằng tầng hầm 2 – ST Moritz
Mặt bằng ST Moritz Đất Xanh được bố trí hợp lý với diện tích tổng 2.400 m², gồm một tòa tháp cao 19 tầng. Tòa nhà cung cấp 103 căn hộ từ tầng 9 đến tầng 17 và 63 văn phòng từ tầng 2 đến tầng 8. Căn hộ có diện tích từ 69-90m², thiết kế 2-3 phòng ngủ, giá từ 58 triệu/m² chưa VAT. Mặt bằng văn phòng có giá bán từ 45 triệu/m² với diện tích từ 55-130m².
Mặt bằng tầng trệt thương mại
Mặt bằng tầng thương mại dịch vụ – ST Moritz
Mặt bằng tầng 2
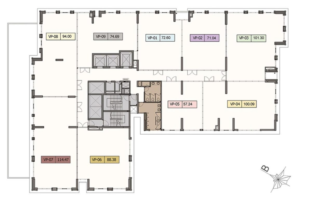
Mặt bằng tầng 2 - 8
Mặt bằng tầng 2 – 8, ST Moritz
Mặt bằng tầng 9 - 17
Mặt bằng tầng 9 -17, ST Moritz
Mặt bằng tầng 18
Mặt bằng tầng 18 , ST Moritz
Mặt bằng tầng 19
Mặt bằng tầng 19, ST Moritz
Thiết kế mặt bằng căn hộ ST Moritz hiện đại, tối ưu không gian, với giếng trời thông thoáng và logia riêng cho từng căn. Căn hộ có tầm nhìn đẹp, không bị che khuất, hướng sông Gò Dưa, Thảo Điền, Landmark 81 và Phạm Văn Đồng. Bếp mở liên kết khu vực sân phơi, giúp giảm mùi hiệu quả. Đặc biệt, căn penthouse nằm tại tầng 18 có 4 căn với sân vườn trên cao, thiết kế sang trọng, đón ánh sáng tự nhiên.
Mặt bằng chi tiết căn hộ
Mặt bằng 3 phòng ngủ
Căn Skyview 3 phòng ngủ – 2 nhà vệ sinh, 144m2
Căn Skyview 3 phòng ngủ – 2 nhà vệ sinh, 114m2
Căn Skyview 3 phòng ngủ – 2 nhà vệ sinh, 143m2
Căn 3 phòng ngủ – 2 nhà vệ sinh, 91m2
Căn Skyview 3 phòng ngủ – 2 nhà vệ sinh, 125m2
Mặt bằng 2 phòng ngủ
Căn 2 phòng ngủ – 2 nhà vệ sinh, 79m2
Căn 2 phòng ngủ – 2 nhà vệ sinh, 78m2
Căn 2 phòng ngủ – 2 nhà vệ sinh, 71m2
Căn 2 phòng ngủ – 2 nhà vệ sinh, 70m2
Căn 2 phòng ngủ – 2 nhà vệ sinh, 79m2
Căn 2 phòng ngủ – 2 nhà vệ sinh, 76m2
Căn 2 phòng ngủ – 2 nhà vệ sinh, 70m2
Căn 2 phòng ngủ – 2 nhà vệ sinh, 78m2
Căn 2 phòng ngủ – 2 nhà vệ sinh, 71m2
Căn 2 phòng ngủ – 2 nhà vệ sinh, 70m2
Mặt bằng văn phòng ST Moritz được thiết kế chuẩn văn phòng 5 sao, với sảnh lobby sang trọng, thang máy tốc độ cao, và hệ thống an ninh chặt chẽ. Văn phòng có pháp lý sử dụng trong 50 năm, giá thuê lại 18 USD/m² trong 2 năm đầu. Dự án ST Moritz là lựa chọn lý tưởng cho cả khách hàng đầu tư lẫn an cư, nhờ vào thiết kế đẳng cấp và vị trí đắc địa.
THÔNG TIN DỰ ÁNQuý khách quan tâm đến căn hộ tại ST MORITZ vui lòng liên hệ ngay Đức Hưng Group để được tư vấn chi tiết và sắp xếp thời gian xem nhà sớm nhất.
- Hotline: 0939 720 039
- Facebook: Đức Hưng Group


