Q7 Boulevard được quy hoạch trên tổng diện tích 16.481,60m2; Mật độ xây dựng 40%.Q7 Boulevard được thiết kế với 4 block, cao 23 tầng và 1 tầng hầm, với tổng số 1.008 căn (bao gồm 84 căn office và 41 căn thương mại).Theo đó, tầng 1 và tầng 2 dành cho căn hộ thương mại, tầng 3 là tầng giữ xe, tầng 4 là tầng office và từ tầng 5 đến tầng 22 là tầng căn hộ có diện tích từ 50,53 m2 – 75,59 m2 (với thiết kế 1 – 3 phòng ngủ).
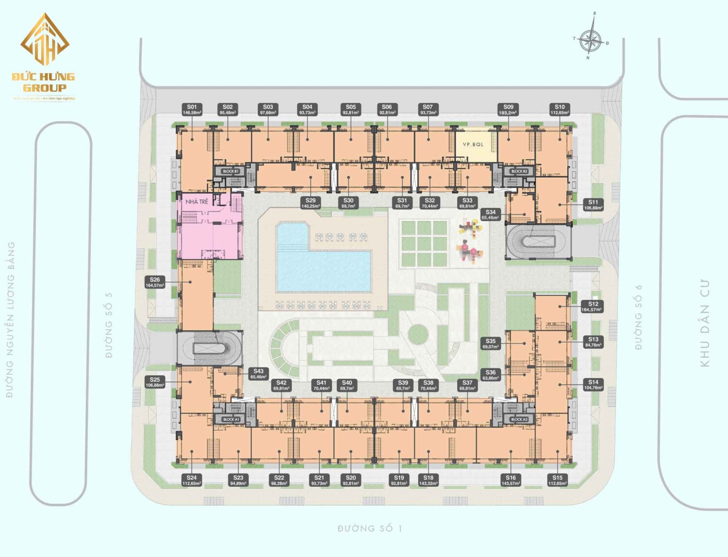
Mặt Bằng Tầng 1 Q7 Boulevard
Mặt Bằng Tầng 2 Q7 Boulevard
MẶT BẰNG TẦNG OFFICE (TẦNG 4)
MẶT BẰNG TẦNG ĐIỂN HÌNH (TẦNG 5-22)
Q7 Boulevard căn hộ 1 phòng ngủ
Mặt bằng căn 1PN Q7 Boulevard
– Căn hộ B1.10: 1PN – 1WC, có diện tích: 50.53m2
Q7 Boulevard căn hộ 2 phòng ngủ
Mặt bằng căn 2PN Q7 Boulevard
– Căn hộ B1.05: 2PN – 2WC, có diện tích: 69.59m2
– Căn hộ A1.06: 2PN – 2WC, có diện tích: 69.18m2
– Căn hộ B1.07: 2PN – 2WC, có diện tích: 69.70m2
– Căn hộ B1.08: 2PN – 1WC, có diện tích: 56.98m2

Q7 Boulevard căn hộ 3 phòng ngủ
Mặt bằng căn 3PN Q7 Boulevard






