Dự án Masterise Lumiere Riverside cung cấp đa dạng sản phẩm với các loại căn hộ, Shophouse, Penthouse, Duplex, và diện tích phong phú để đáp ứng nhu cầu đa dạng của khách hàng.
Mặt Bằng Tổng Thể
Mặt Bằng Lumiere West
Bao gồm:
– 11 thang máy
– 13-19 căn hộ / tầng
– Tầng lánh nạn : 12, 22 & 32
– Diện tích căn hộ : 1PN: 49 – 52 m; 2PN: 68 – 77 m2; 3PN: 92 – 113 m2
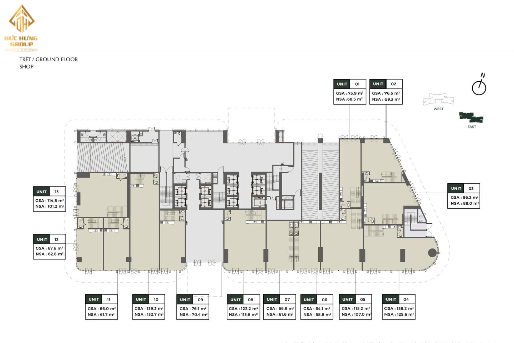
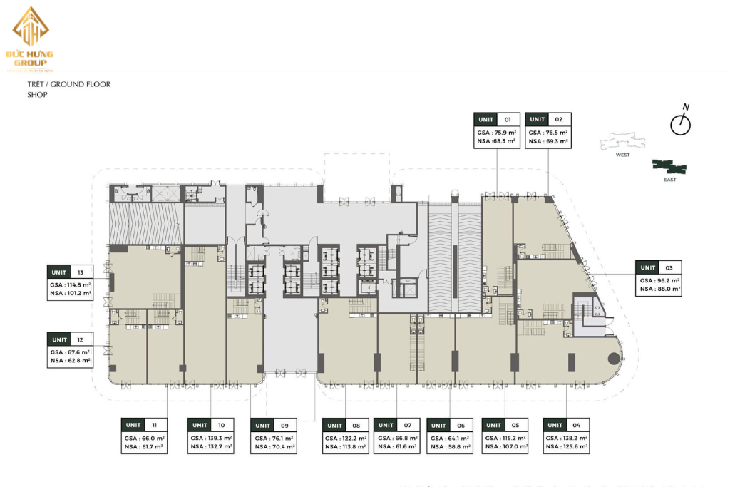
Tháp West – Shophouse – Tầng trệt
Tháp West – Shophouse – Tầng 1
Tháp West – Shophouse – Tầng 2
Tháp West – Tầng 7
Tháp West – Tầng 8
Tháp West – Tầng 9-11, Tầng 13-21, Tầng 23-30
Tháp West – Tầng 12, Tầng 22
Tháp West – Tầng 31
Tháp West – Tầng 32
Tháp West – Tầng 33-40
Tháp West – Tầng 41 – Penthouse
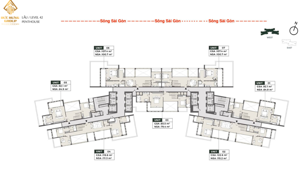
Tháp West – Tầng 42 – Penthouse
Mặt Bằng Lumiere East
Bao gồm:
– 6 thang máy/ tầng
– 14 căn hộ/ tầng
– Tầng lánh nạn: 19
– Diện tích căn hộ: 1PN: 49 – 52 m2; 2PN: 68 – 77 m2; 3PN: 92 – 113 m2
Tháp East – Tầng trệt – Shophouse
Tháp East – Tầng 1 – Shophouse
Tháp East – Tầng 8
Tháp East – Tầng 9-10
Tháp East – Tầng 11-18 & Tầng 20-32
Tháp East – Tầng 19
Tháp East – Tầng 33 – Penthouse
Tháp East – Tầng 34 – Penthouse
Mặt bằng căn hộ ghép 4 phòng ngủ Lumiere Riverside – Tháp West
Loại 1
Loại 2
Mặt bằng căn hộ ghép 3 – 4 phòng ngủ Lumiere Riverside – Tháp East
Loại 1
Loại 2
Loại 3
Loại 4
Layout chi tiết từng căn shophouse Lumiere Riverside – Tháp East
Shophouse 02
Shophouse 03
Shophouse 04
Shophouse 05
Shophouse 06
Shophouse 07
Shophouse 08
Shophouse 09
Shophouse 10
Shophouse 11
Shophouse 12
Shophouse 13
Mặt bằng chi tiết từng căn shophouse Lumiere Riverside – Tháp West
Shophouse 01
Shophouse 02
Shophouse 04
Shophouse 06











































