Mặt Bằng Dự Án
Block HR1 Eco Green từ tầng 3A – 36 bao gồm 2 tháp A và B liền kề trung tâm thương mại 69 tầng. Mỗi tháp cao 36 tầng thiết kế căn hộ 2 phòng ngủ và 3 phòng ngủ.
Mặt bằng block HR2
Mặt bằng block M2
Mặt bằng block HR3
Eco Green căn hộ 2 phòng ngủ
Mặt bằng căn 2PN Eco Green
– Căn hộ A1: 2PN – 2WC, có diện tích tim tường: 64.30m2 và diện tích thông thủy: 60m2
– Căn hộ A3: 2PN – 2WC, có diện tích tim tường: 65.25m2 và diện tích thông thủy: 60.26m2
– Căn hộ A4: 2PN – 2WC, có diện tích tim tường: 65.11m2 và diện tích thông thủy: 60.25m2
– Căn hộ A7: 2PN – 2WC, có diện tích tim tường: 66.57m2 và diện tích thông thủy: 61.34m2
– Căn hộ A8: 2PN – 2WC, có diện tích tim tường: 51.93m2 và diện tích thông thủy: 49.08m2
– Căn hộ A9: 2PN – 2WC,có diện tích tim tường:74.94m2 và diện tích thông thủy: 66.23m2
Eco Green căn hộ 3 phòng ngủ
Mặt bằng căn 3PN Eco Green
– Căn hộ B2: 3PN – 2WC, có diện tích tim tường: 80.64m2 và diện tích thông thủy: 75m2
– Căn hộ B5: 3PN – 2WC, có diện tích tim tường:94.74m2 và diện tích thông thủy: 88.39m2
– Căn hộ B6: 3PN – 2WC, có diện tích tim tường: 95.40m2 và diện tích thông thủy: 89.31m2
– Căn hộ B10: 3PN – 2WC, có diện tích tim tường:87.24m2 và diện tích thông thủy: 81.39m2
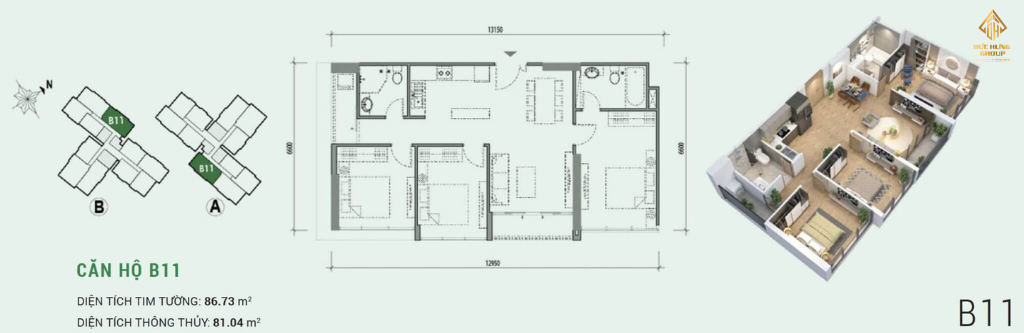
– Căn hộ B11: 3PN – 2WC, có diện tích tim tường:86.73m2 và diện tích thông thủy: 81.04m2











